Khu Công Nghiệp Nam Tràng Cát Khu công nghiệp Nam Tràng Cát nằm trong khu kinh tế Đình Vũ – Cát Hải, hưởng lợi từ nhiều chính sách ưu đãi đầu tư. Với vị trí giao thông thuận lợi, đặc biệt gần cảng Hải Phòng, khu công nghiệp này rất thuận tiện cho việc vận […]
Khu Công Nghiệp Dệt May Phố Nối Khu công nghiệp Dệt May Phố Nối là một trong những khu công nghiệp đặc thù tại miền Bắc Việt Nam, được xây dựng đặc biệt cho các doanh nghiệp trong lĩnh vực dệt may và các ngành công nghiệp phụ trợ liên quan. Đây là khu công […]
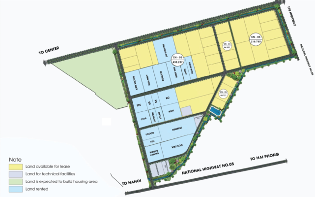
Khu Công Nghiệp Phố Nối A Trong thời gian gần đây, Khu Công nghiệp Phố Nối A tại Hưng Yên đã trở thành điểm đến hấp dẫn cho nhiều nhà đầu tư quốc tế như Nhật Bản, Hàn Quốc, Trung Quốc, Pháp, Hoa Kỳ, Belarus… Điều này là nhờ vào môi trường đầu tư thuận […]
Khu Công Nghiệp Yên Mỹ Vào ngày 17/7/2018, Ban Quản lý các Khu công nghiệp tỉnh Hưng Yên đã chính thức cấp Giấy chứng nhận đăng ký đầu tư cho Công ty Cổ phần Phát triển Khu công nghiệp Yên Mỹ – Hưng Yên, với dự án “Đầu tư xây dựng và kinh doanh kết […]
Khu Công Nghiệp Thăng Long II Khu công nghiệp Thăng Long II đã được cánh doanh nghiệp đánh giá cao nhờ vào hạ tầng kỹ thuật vượt trội, cùng với việc cung cấp dịch vụ đồng bộ và hệ thống xử lý nước hiện đại. Đây không chỉ là một điểm nhấn quan trọng trong […]
Khu Công Nghiệp Minh Đức Khu công nghiệp Minh Đức, ra đời từ năm 2007, nằm tại một vị trí chiến lược với mạng lưới giao thông hoàn hảo. Với vị thế này, việc kết nối với các tỉnh lân cận và các trung tâm kinh tế như Hà Nội, Hải Phòng, và Quảng Ninh […]
Khu Công Nghiệp Minh Quang Khu công nghiệp Minh Quang, Hưng Yên Thành lập theo Văn bản số 1159/TTg-CN ngày 21/8/2007 của Thủ tướng Chính phủ về việc bổ sung KCN Minh Quang vào quy hoạch phát triển các KCN ở Việt Nam và Quyết định số 542/QĐ-UBND ngày 04/03/2008 của Uỷ ban nhân dân […]
Khu Công Nghiệp Lý Thường Kiệt Khu công nghiệp Lý Thường Kiệt tại tỉnh Hưng Yên nổi bật là điểm đến hấp dẫn cho các nhà đầu tư nhờ vào cơ sở hạ tầng đồng bộ, môi trường sạch sẽ, ít ô nhiễm và nhiều chính sách ưu đãi đầu tư. Nằm trên địa bàn […]
Cụm Công Nghiệp Kim Động – Đặng Lễ – Chính Nghĩa Vào ngày 10/12/2021, Ủy ban Nhân dân tỉnh Hưng Yên đã ban hành Quyết định số 2887/QĐ-UBND, điều chỉnh và bổ sung vào Quy hoạch phát triển cụm công nghiệp tỉnh Hưng Yên đã được phê duyệt trước đó tại Quyết định số 3143/QĐ-UBND […]
Khu Công Nghiệp Tân Dân Khu Công nghiệp Tân Dân, với tổng vốn đầu tư lên đến 65 triệu USD, là một dự án quy mô lớn đặt tại vị trí chiến lược, với diện tích quy hoạch rộng lớn lên đến 200 hecta. Trong đó, 143 hecta được dành riêng cho việc cho thuê […]










