Khu Công Nghiệp Thạch Thất – Quốc Oai
Khu công nghiệp Thạch Thất – Quốc Oai nằm ở thị trấn Quốc Oai và xã Phùng Xá, huyện Thạch Thất, thành phố Hà Nội, với diện tích rộng lớn đạt 150,12 ha. Vào năm 2017, khu vực này đã được điều chỉnh theo Quyết định số 7190/QĐ-UBND, thông qua việc điều chỉnh cục bộ Quy hoạch chi tiết tỷ lệ 1/2000. Cụ thể, việc điều chỉnh này tập trung vào các ô đất ký hiệu KT1 và RT, tại xã Phùng Xá, huyện Thạch Thất, cũng như các xã Sài Sơn, Tiên Sơn và thị trấn Quốc Oai, huyện Quốc Oai, TP. Hà Nội.

Tổng Quan Khu Công Nghiệp Thạch Thất – Quốc Oai
THÔNG TIN KHU CÔNG NGHIỆP THẠCH THẤT – QUỐC OAI
- Tên : Khu Công Nghiệp Thạch Thất Quốc Oai
- Vị trí : Thị trấn Quốc Oai và Xã Phùng Xá, Huyện Thạch Thất, Hà Nội
- Chủ đầu tư : Công ty Cổ phần Đầu tư Phát triển Hà Tây
- Tổng quy mô : 150,12ha
- Thời gian vận hành từ năm 2006

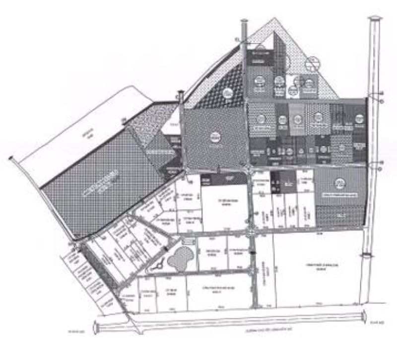
Mặt Bằng Khu Công Nghiệp Thạch Thất – Quốc Oai
Đánh giá từ Khu Công Nghiệp Việt Nam thì đây là khu vực đang phát triển mạnh về hạ tầng giao thông kết nối thuận tiện cho việc vận chuyển hàng hoá được nhiều doanh nghiệp quan tâm đầu tư xây dựng nhà xưởng sản xuất.
VỊ TRÍ KHU CÔNG NGHIỆP THẠCH THẤT – QUỐC OAI
Khu công nghiệp Thạch Thất – Quốc Oai tọa lạc tại thị trấn Quốc Oai và xã Phùng Xá, huyện Thạch Thất, TP. Hà Nội, với diện tích rộng lớn đạt 150,12 ha và được xác định ranh giới như sau:
Phía Bắc: Liền kề với khu dân cư của xã Phùng Xá, tạo điều kiện thuận lợi cho sự phát triển và giao thương.
Phía Nam: Tiếp giáp với đường cao tốc Láng Hoà Lạc, một trục đường quan trọng kết nối vùng này với các khu vực khác trong và ngoài thành phố Hà Nội.
Phía Đông: Giáp với đường gom của Khu công nghiệp, đảm bảo sự liên kết và tiện lợi trong việc vận chuyển hàng hóa và dịch vụ.
Phía Tây: Tiếp giáp với tuyến đường liên huyện, mở ra cơ hội kết nối vùng và thuận lợi cho việc di chuyển của cư dân và người lao động.
Sự kết hợp hài hòa giữa vị trí địa lý và hạ tầng giao thông của khu công nghiệp này không chỉ tạo điều kiện thuận lợi cho các doanh nghiệp mà còn góp phần vào sự phát triển bền vững của khu vực và đất nước.

Kết Nối Giao Thông Khu Công Nghiệp Thạch Thất – Quốc Oai
CƠ SỞ HẠ TẦNG TẠI KHU CÔNG NGHIỆP THẠCH THẤT – QUỐC OAI
Hệ thống đường giao thông nội bộ của Khu công nghiệp Thạch Thất – Quốc Oai được thiết kế rộng rãi và hiện đại, với các đoạn đường trong khu trung tâm có chiều rộng lên đến 36m, còn đường nhánh thì đạt 24m. Để đảm bảo an toàn và tiện lợi cho việc di chuyển, hệ thống đường này được trang bị đèn chiếu sáng dọc theo tuyến đường, tạo ra không gian mở và an toàn vào cả ban ngày lẫn ban đêm.
Hệ thống cấp điện của khu công nghiệp này được đảm bảo liên tục và ổn định, lấy nguồn từ tuyến điện cao thế của Thành phố Hà Nội, với tổng công suất lên đến khoảng 60 MVA. Mạng lưới điện được phân phối dọc theo các đường giao thông nội bộ trong Khu công nghiệp, và doanh nghiệp có thể đầu tư và xây dựng các trạm hạ thế tương ứng với nhu cầu sử dụng của mình.
Hệ thống cấp nước sạch của Khu công nghiệp được kết nối đến từng doanh nghiệp, đảm bảo cung cấp nước sạch đến tận chân tường rào của mỗi doanh nghiệp.
Trong lĩnh vực thông tin liên lạc, hệ thống viễn thông được đánh giá đạt tiêu chuẩn quốc tế, luôn sẵn sàng để đáp ứng nhu cầu thông tin liên lạc của các doanh nghiệp. Hệ thống cáp quang ngầm được kết nối trực tiếp đến chân hàng rào của từng doanh nghiệp, tạo ra một mạng lưới liên lạc hiệu quả và ổn định.
Đối với xử lý rác thải, Khu công nghiệp ký hợp đồng với các đơn vị chuyên phân loại, thu gom và vận chuyển rác thải để đảm bảo không gây ô nhiễm môi trường.
Nguồn lao động là một điểm mạnh của Khu công nghiệp này, khi Hà Nội là trung tâm thu hút lực lượng lao động đông đảo và chất lượng từ các tỉnh lân cận. Với dân số đang gia tăng và vị thế là trung tâm thủ đô, Hà Nội không ngừng cung cấp nguồn lao động dồi dào cho các khu công nghiệp, bao gồm cả Khu công nghiệp Thạch Thất – Quốc Oai, đảm bảo cho các doanh nghiệp tại đây có nguồn nhân lực phong phú và đa dạng.

Hạ Tầng Khu Công Nghiệp Thạch Thất – Quốc Oai
NGÀNH NGHỀ THU HÚT ĐẦU TƯ KHU CÔNG NGHIỆP THẠCH THẤT – QUỐC OAI
Ngành nghề chính tại Khu công nghiệp Thạch Thất – Quốc Oai bao gồm một loạt các ngành công nghiệp đa dạng như lắp ráp điện tử, sản xuất hàng hóa tiêu dùng, công nghiệp nhẹ, và sản xuất xe ô tô. Đây là những lĩnh vực đang phát triển mạnh mẽ, thu hút sự quan tâm và đầu tư từ các doanh nghiệp trong và ngoài nước. Tại đây, các doanh nghiệp có thể tận dụng cơ sở hạ tầng và nguồn lao động dồi dào để phát triển sản xuất, nâng cao chất lượng và cạnh tranh trên thị trường quốc tế.

kho Nhà Xưởng Khu Công Nghiệp Thạch Thất – Quốc Oai
CHI PHÍ VÀ ƯU ĐÃI ĐẦU TƯ TẠI KHU CÔNG NGHIỆP THẠCH THẤT – QUỐC OAI
Chi phí đầu tư cho việc thuê đất đã có hạ tầng trong Khu công nghiệp Thạch Thất – Quốc Oai dao động từ 60 đến 65 USD/m2. Đối với chi phí điện, giá cao điểm là 0,1 USD/kWh, giá bình thường là 0,05 USD/kWh và giá thấp điểm là 0,03 USD/kWh. Chi phí cho nước là 0,4 USD/m3 và chi phí lao động phụ thuộc vào vị trí công việc, trong khoảng từ 200 đến 500 USD/người/tháng.
Ngoài ra, các doanh nghiệp cũng phải tính phí quản lý đất là 0,2 USD/m2/năm và phí xử lý nước thải là 0,28 USD/m3.
Về ưu đãi thuế thu nhập doanh nghiệp, theo quy định của Nghị định số 218/2013/NĐ-CP và Nghị định số 12/2015/NĐ-CP hướng dẫn Luật sửa đổi, bổ sung một số điều của các Luật về thuế và sửa đổi, bổ sung một số điều của các Nghị định về thuế, các doanh nghiệp sẽ được hưởng thuế suất ưu đãi là 10% trong thời hạn 15 năm. Đồng thời, sẽ được miễn thuế trong 4 năm và giảm 50% số thuế phải nộp trong 9 năm tiếp theo, đối với các trường hợp được ưu đãi.

Nhà Xưởng Khu Công Nghiệp Thạch Thất – Quốc Oai

