Khu Công Nghiệp Phú Mỹ 2 Mở Rộng IDICO Bà Rịa Vũng Tàu
Khu công nghiệp Phú Mỹ 2 mở rộng IDICO là một dự án đáng chú ý tại các Phường Phú Mỹ, Phước Tân và Phước Hòa, thuộc Thị Xã Phú Mỹ, Tỉnh Bà Rịa – Vũng Tàu. Được đầu tư và quản lý bởi Tổng Công Ty IDICO, dự án có quy mô rộng lớn, với diện tích tổng cộng lên đến 400,87 hecta.
Khu công nghiệp Phú Mỹ 2 mở rộng là một trong những khu công nghiệp hiện đại và tiên tiến nhất trong khu vực. Với sự phát triển và đầu tư đồng bộ từ chủ đầu tư, khu công nghiệp hứa hẹn đáp ứng đầy đủ các yêu cầu của các doanh nghiệp, đảm bảo môi trường sản xuất an toàn, tiện nghi và hiệu quả.
Với vị trí đắc địa tại Tỉnh Bà Rịa – Vũng Tàu, một trong những trung tâm kinh tế sôi động của Việt Nam, Khu công nghiệp Phú Mỹ 2 mở rộng IDICO hứa hẹn mang lại nhiều cơ hội phát triển cho các doanh nghiệp thuộc nhiều lĩnh vực khác nhau. Bên cạnh đó, với việc sở hữu môi trường đầu tư cởi mở, hạ tầng hoàn chỉnh và các dịch vụ hỗ trợ chất lượng, khu công nghiệp này hứa hẹn là điểm đến lý tưởng cho các nhà đầu tư trong và ngoài nước.
Kết hợp giữa tiềm năng phát triển của khu vực và sự chuyên nghiệp của Tổng Công Ty IDICO, KCN Phú Mỹ 2 mở rộng hứa hẹn là điểm đến thuận lợi để đẩy mạnh hoạt động sản xuất, thúc đẩy năng suất kinh tế và tạo công ăn việc làm cho người lao động địa phương. Đồng thời, dự án cũng góp phần thúc đẩy phát triển bền vững của địa phương và đóng góp vào sự phát triển toàn diện của đất nước.

Cổng Chính Khu Công Nghiệp Phú Mỹ 2 Mở Rộng
THÔNG TIN KHU CÔNG NGHIỆP PHÚ MỸ 2 MỞ RỘNG IDICO
- Tên : Khu Công Nghiệp Phú Mỹ 2 Mở Rộng
- Vị trí : Thuộc Phường Phú Mỹ, Phước Tân và Phước Hòa, Thị Xã Phú Mỹ , Tỉnh Bà Rịa – Vũng Tàu:
- Chủ đầu tư : Tổng Công Ty IDICO
- Quy mô : 400.87ha
- Thời gian thuê đất đến năm 2058

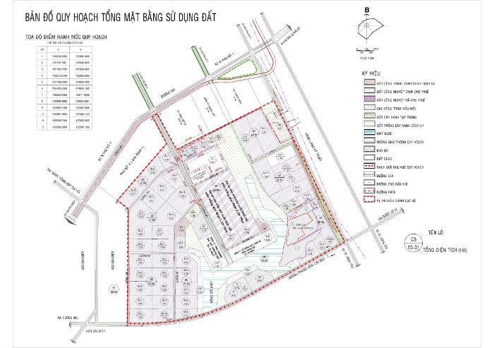
Mặt Bằng Khu Công Nghiệp Phú Mỹ 2 Mở Rộng

Thực Tế Khu Công Nghiệp Phú Mỹ 2 Mở Rộng
VỊ TRÍ KHU CÔNG NGHIỆP PHÚ MỸ 2 MỞ RỘNG
Nằm ở vị trí chiến lược tại Thị Xã Phú Mỹ, Tỉnh Bà Rịa – Vũng Tàu, KCN Phú Mỹ 2 mở rộng hứa hẹn mang đến nhiều tiềm năng và cơ hội kinh doanh hấp dẫn. Khu công nghiệp bao quanh bởi những địa điểm quan trọng, tạo lập một hệ sinh thái đa dạng, thuận lợi cho các doanh nghiệp.
- Phía Bắc giáp với khu công nghiệp Phú Mỹ 2 IDICO, đường 965 và một số dự án khác. Điều này tạo ra một môi trường kinh doanh sôi động, thuận lợi cho việc hợp tác và phối hợp giữa các doanh nghiệp.
- Phía Đông tiếp giáp với hành lang kỹ thuật của đô thị mới Phú Mỹ, điều này hứa hẹn giúp các doanh nghiệp trong khu công nghiệp tiếp cận các tiện ích, dịch vụ và cơ sở hạ tầng hiện đại của đô thị.
- Phía Nam giáp với đường quy hoạch Phước Hòa – Cái Mép, mở ra cơ hội kết nối và phát triển vùng kinh tế ven biển, tận dụng tiềm năng về giao thương và logistics.
- Phía Tây tiếp giáp với Khu công nghiệp Cái Mép, tạo thành một khu vực kinh tế đặc biệt quan trọng, hỗ trợ cho nhau và phát triển chung.
Với vị trí đắc địa và sự liên kết vùng mạnh mẽ này, KCN Phú Mỹ 2 mở rộng Bà Rịa Vũng Tàu đang trở thành điểm đến lý tưởng cho các doanh nghiệp, từ những công ty lớn đến các doanh nghiệp nhỏ và vừa, đồng thời góp phần thúc đẩy phát triển kinh tế và địa phương, góp phần vào sự phát triển bền vững của đất nước.

Vị Trí Khu Công Nghiệp Phú Mỹ 2 Mở Rộng
LỢI THẾ CỦA KHU CÔNG NGHIỆP PHÚ MỸ 2 MỞ RỘNG IDICO
Khu công nghiệp Phú Mỹ 2 IDICO Mở Rộng nhiều lợi thế đáng kể:
Gần các cảng hàng đầu: Khu công nghiệp này nằm gần các cảng quan trọng như Cái Mép, Phú Mỹ, SP-SPA và SITV, kết nối với tuyến vận tải biển quốc tế sôi động nhất khu vực và thế giới. Điều này cho phép tiếp nhận tàu trọng tải lớn và sử dụng các máy móc, thiết bị bốc dỡ hàng hóa hiện đại, giúp tiết kiệm chi phí vận chuyển và hậu cần.
Khí đốt thiên nhiên tiện lợi: Khu công nghiệp có sẵn khí đốt thiên nhiên phục vụ cho các nhà đầu tư có nhu cầu. Điều này là một lợi thế quan trọng và không phải khu công nghiệp nào cũng có.
Giá cho thuê đất hấp dẫn: Khu công nghiệp Phú Mỹ 2 mở rộng IDICO cung cấp giá cho thuê đất cạnh tranh so với các khu công nghiệp lân cận, thu hút sự quan tâm của các nhà đầu tư.
Hệ thống cảng thủy nội địa tiện lợi: Có hệ thống cảng thủy nội địa trong Khu công nghiệp, cho phép vận chuyển nguyên vật liệu và hàng hóa nội địa và trong khu vực, với khả năng tiếp nhận tàu, xà lan đến 3.000 tấn.

Liên Kết Vùng Khu Công Nghiệp Phú Mỹ 2 Mở Rộng
Diện tích lớn cho các dự án: Khu công nghiệp Phú Mỹ 2 mở rộng có quỹ đất dành cho các dự án cần diện tích lớn, tạo điều kiện thuận lợi cho việc mở rộng và đầu tư.
Xử lý nước thải hiện đại: Nhà máy xử lý nước thải hoạt động với công suất lớn 4.000m3/ngày đêm, đảm bảo môi trường sản xuất trong khu công nghiệp được duy trì và bảo vệ.
Hệ thống giao thông hoàn chỉnh: Kết nối giao thông thuận lợi với tuyến đường 965 và Quốc lộ 51, cũng như tuyến đường liên cảng, giúp giao thương, vận tải và lưu thông hàng hóa hiệu quả.
Hạ tầng kỹ thuật đồng bộ: Có hệ thống hạ tầng kỹ thuật đáp ứng đầy đủ nhu cầu sản xuất, bao gồm giao thông nội bộ, cấp điện, cấp nước, thoát nước mưa và nước thải, đảm bảo sẵn sàng chào đón các nhà đầu tư xây dựng nhà máy tại đây.
Tóm lại, với tất cả những lợi thế trên, Khu công nghiệp Phú Mỹ 2 mở rộng IDICO là một điểm đến hấp dẫn và đáng để các doanh nghiệp đầu tư và phát triển sản xuất.

Hạ Tầng Kết Nối Khu Công Nghiệp Phú Mỹ 2 Mở Rộng
- Đánh giá thì KCN Phú Mỹ 2 Mở Rộng nhằm đáp ứng nhu cầu cho nhiều doanh nghiệp đang có nhu cầu mở rộng thị trường sản xuất và có lợi thế vận chuyển hàng hóa xuất khâu đi quốc tế.
CƠ SỞ HẠ TẦNG KHU CÔNG NGHIỆP PHÚ MỸ 2 MỞ RỘNG
KCN Phú Mỹ 2 mở rộng ở tỉnh Bà Rịa – Vũng Tàu gần cảng và được cung cấp khí đốt thiên nhiên.
CƠ SỞ HẠ TẦNG
Cấp điện: Nguồn điện từ lưới điện Quốc gia, áp 22kV, giá điện theo quy định của Nhà nước.
Cấp nước sạch: Nguồn từ Nhà máy nước Tóc Tiên, công suất 50.000m3/ngày đêm, đơn giá nước 12.500VNĐ/m3.
Hệ thống thông tin liên lạc: Hỗ trợ bởi các nhà mạng VNPT, FPT, Viettel… với đầy đủ dịch vụ như điện thoại, điện thoại di động, Fax, Internet.

Hạ Tầng Bên Trong Khu Công Nghiệp Phú Mỹ 2 Mở Rộng
Xử lý nước thải: Có nhà máy xử lý nước thải công suất 4.000m3/ngày đêm, với phí xử lý tham khảo 0,4USD/m3.
Giao thông nội bộ: Khu công nghiệp có hệ thống giao thông nội bộ đầy đủ, bao gồm đường D3 và đường xương cá.
Giao thông ngoài: Giao thông kết nối với các đường 965, Phước Hòa – Cái Mép, đường 2A, tiếp cận các cảng Cái Mép, Phú Mỹ…
Hệ thống cảng: Gần nhiều cảng hàng đầu như Cái Mép, Phú Mỹ, SP-SPA, PTSC… Các cảng này có khả năng tiếp nhận tàu từ 80.000 tấn đến 200.000 tấn.
Cung cấp khí đốt: KCN có nguồn cung cấp khí đốt thiên nhiên từ mỏ Nam Côn Sơn, phục vụ các nhà đầu tư có nhu cầu sử dụng khí.

Hạ Tầng Khu Công Nghiệp Phú Mỹ 2 Mở Rộng
NGÀNH NGHỀ ĐẦU TƯ TẠI KHU CÔNG NGHIỆP PHÚ MỸ 2 MỞ RỘNG IDICO
KCN Phú Mỹ 2 thu hút đầu tư vào nhiều ngành nghề, chủ yếu tập trung vào các ngành công nghiệp sử dụng công nghệ hiện đại, tiết kiệm tài nguyên, đất đai, năng lượng, nước và thân thiện với môi trường. Những ngành nghề được đưa ra để hướng đầu tư bao gồm:
Sản xuất vật liệu xây dựng.
Sản xuất và gia công sản phẩm ngành thép.
Gia công cơ khí và chế tạo máy móc, thiết bị.
Công nghiệp điện và điện tử.
Các ngành công nghiệp có nhu cầu sử dụng cảng.
Các ngành công nghiệp hỗ trợ và hoạt động dịch vụ khác.

Kho Xưởng Khu Công Nghiệp Phú Mỹ 2 Mở Rộng
- Tuy nhiên, cũng có một số ngành nghề tạm thời không thu hút đầu tư hoặc bị hạn chế thu hút trong KCN Phú Mỹ 2. Cụ thể như sau:
Ngành nghề tạm dừng không thu hút đầu tư:
Chế biến tinh bột sắn (khoai mì).
Chế biến mủ cao su.
Sản xuất hoá chất cơ bản phát sinh nước thải công nghiệp.
Nhuộm.
Thuộc da.
- Ngành nghề hạn chế thu hút đầu tư:
Công nghiệp xi mạ.
Chế biến thuỷ hải sản.
Sản xuất hoá chất bảo vệ thực vật (có phát sinh nước thải công nghiệp).
Sản xuất phân bón (có phát sinh nước thải công nghiệp).
Sản xuất bột giấy.
Những hạn chế và tạm dừng trên được đưa ra để bảo vệ môi trường và đảm bảo sự phát triển bền vững của KCN Phú Mỹ 2 mở rộng IDICO

Nhà Xưởng Khu Công Nghiệp Phú Mỹ 2 Mở Rộng
ƯU ĐÃI ĐẦU TƯ TẠI KHU CÔNG NGHIỆP PHÚ MỸ 2 MỞ RỘNG
Ưu đãi đầu tư vào khu công nghiệp Phú Mỹ 2 mở rộng bao gồm:
Thuế suất thuế thu nhập doanh nghiệp: 20%.
Ưu đãi thuế:
Doanh nghiệp được áp dụng thuế suất ưu đãi là 17% trong suốt 10 năm liên tục, tính từ năm đầu tiên có doanh thu từ dự án. Sau thời gian này, doanh nghiệp chuyển sang áp dụng thuế suất 20%.
Miễn thuế 2 năm và giảm 50% trong 4 năm tiếp theo, tính từ khi doanh nghiệp có thu nhập chịu thuế.
Thời gian miễn, giảm thuế tính liên tục từ năm đầu tiên có thu nhập chịu thuế từ dự án.
Trong trường hợp doanh nghiệp không có thu nhập chịu thuế trong ba năm đầu (kể từ năm đầu tiên có doanh thu từ dự án), thời gian miễn thuế giảm thuế được tính từ năm thứ tư.
Các quy định ưu đãi thuế căn cứ vào Nghị định số 218/2013/NĐ-CP ngày 26/12/2013 và số 118/2015/NĐ-CP ngày 12/11/2015.
Thuế nhập khẩu:
Doanh nghiệp được miễn thuế nhập khẩu đối với hàng hoá nhập khẩu, theo quy định tại Điều 16 Luật Thuế xuất khẩu, Thuế nhập khẩu số 45/2005/QH11 ngày 14 tháng 6 năm 2005 và Điều 12 Nghị định số 87/2010/NĐ-CP ngày 13 tháng 8 năm 2010 của Chính phủ, quy định chi tiết thi hành một số điều của Luật Thuế xuất khẩu, Thuế nhập khẩu.

Ưu Đãi Thuế Khu Công Nghiệp Phú Mỹ 2 Mở Rộng

